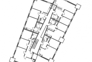
2008Bytový dům Lovosice
Zastavěná plocha: |
532 m2 |
Obestavěný prostor: |
8494 m3 |
Užitná plocha bytů: |
|
garsonka typ I 2x59 m2: |
118 m2 |
garsonka typ II 2x46 m2: |
92 m2 |
garsonka typ III 5x35 m2: |
175 m2 |
2+kk typ I 4x61,5 m2: |
246 m2 |
2+kk typ II 4x58 m2: |
232 m2 |
| 2+0 5x66,5 m2: | 332,5 m2 |
3+kk 4x86 m2: |
8494m2 |
3+1 3x103 m2: |
309 m2 |
Užitná plocha zázemí: |
467 m2 |
URBANISTICKÉ ŘEŠENÍ
Místo určené k zástavbě je definované ohybem ulice Prokopa Holého, která prochází městským blokem vymezeným ulicemi Terezínskou a Žižkovou. Tento blok není kompaktní, ale je skladbou dvou menších neuzavřených bloků – jednoho orientovaného do Husovy ulice, druhého orientovaného do Žižkovy ulice. Vnitrobloky obou navíc obsahují drobnější stavby. Uvnitř prvního jsou postavené řadové garáže (podél ulice Prokopa Holého), uvnitř druhého je bývalá mateřská školka a obytný dům s venkovními kůlnami.
Parter domu tvoří plocha pro parkování a pochůzí plocha podél objektu a pod jeho částí. Plocha pro parkování je obsloužená z ulice Prokopa Holého. Lemy parteru jsou tvořeny nízkými zídkami v návaznosti na spád okolního terénu. Vstup do obytného domu je z jižní strany v přímé návaznosti na chodník lemující vozovku a na chodník vedoucí podél stávajícího obytného domu.
ARCHITEKTONICKÉ ŘEŠENÍ
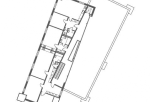
Architektura domu odráží výše uvedený urbanistický princip, tj. průnik dvou objemů vzájemně otočených a posunutých po vertikální i horizontální ose. Taková prostorová kompozice dává domu přirozeně individuální charakter a umožňuje také využít prostorových posunů v dispozici domu. Nástupní plochy jsou tak kryty před povětrností, přízemní chodba je přirozeně osvětlená a odvětraná, patrové chodby se přirozeně zužují od vstupu a schodiště k výtahu, větší byty u štítů jsou příčně provětrané a prosluněné, střecha jedné části je terasou posledního patra části druhé. Dispozice typického patra je založena na jednoduchém chodbovém principu, kdy menší byty na patře jsou orientovány jen na jednu světovou stranu a větší byt y na obě světové strany.
V přízemí je místo řady bytů na západ krytý venkovní prostor navazující na parkoviště, pod částí B je pak technické zázemí domu, úložné prostory jednotlivých bytů a kryté parkovací stání.
Jižní a východní (dvorní) fasáda domu je v úrovni patreru popnuta zelení (např. přísavníkem).
V posledním podlaží je v místě východních bytů navržená střešní terasa.
Vnější vzhled je plně podřízen prostorové kompozici, účelnosti dispozic a jednoduchosti užívání. Proto základním výtvarným prvkem je hra světla s stínů na srostlici obou základních objemů doplněných kubusy balkónů, které plasticky vystupují z obrysu domu.
Dům má sytou, zemitou barvu. Do země „vrostlá“ část domu je „těžší“, tmavší oproti „levitující a lehčí“ , světlejší části domu. Balkóny „visící ve vzduchu“ mají průsvitná plná zábradlí v různých barvách.
Vlastní fasády jsou členěny okny tak, jak to odpovídá traktování dispozic. Rozměry, tvar a členění oken jsou navrženy s ohledem na jejich funkčnost a praktičnost. Výrazným prvkem jsou prosklené plochy v přízemí a v posledním patře. Velmi důležitým tématem je řešení parteru, a to jak vně tak, uvnitř domu. Venkovní zpevněné plochy budou vydlážděny betonovými dlaždicemi, parkovací stání budou řešena pomocí betonových zatravňovacích dlaždic a zídky vymezující terénní zlomy a předzahrádky na východní straně budou z pohledového jemnozrnného betonu s nátěrem.
původní verze řešení z roku 2003 ve spolupáci s Janem Jehlíkem
( Jan Jehlík Architektonická kancelář )
