2006Rodinný dům Stará Huť
Plocha pozemku: |
7699 m2 |
Užitná plocha: |
|
| Dům: | 638 m2 |
| Klub: | 224 m2 |
Obestavěný prostor: |
|
| Dům: | 2237 m3 |
| Klub: | 616 m3 |
spolupáce s Jan Jehlík architektonická kancelář
URBANISTICKÉ ŘEŠENÍ
Návrh pracuje s několika základními objekty – obytným domem, garážemi s klubem, tenisovým kurtem, zpevněnými (kamennými) plochami, písčitými plochami a pobytovým trávníkem. Tyto základní „stavební kameny“ jsou doplněny zahradními okrasnými prky (stromy, keře, květiny), drobnou architekturou (přírodní bazén, altán, zídky), a ochrannou zelení (živý plot, smíšený porost rokle). Všechny tyto objekty jsou koncipovány v pevné kompozici v logice orientace vůči světovým stranám, vůči obci a krajině a vzájemně vůči sobě. Důležitým momentem návrhu je také vytvoření rozmanitých pohledových os s cílem nabídnout různé „obrazy“ v různých měřítcích, vzdálenostech a kvalitách. Stejně důležitou hodnotu má i návrh pobytových míst s různou atmosférou, s různým výhledem a mírou intimity.
ARCHITEKTONICKÉ ŘEŠENÍ
vychází ze základního charakteru původního domu – v celkové hmotě (stejně široký a vysoký, „jen“ dvakrát delší), v tvarové lapidárnosti (včetně obdobného tvaru střechy), v principu omítnutých masivních zdí prolomených zhruba čtvercovými okny. Jinak je dům navržen jako ryze soudobá architektura – velkými prosklenými plochami je opticky propojen interiér s exteriérem, vnitřní prostor je pojat víceméně jako kontinuum s možnostmi různé míry zavírání a otvírání jeho jednotlivých částí, významným prvkem modelujícím atmosféru je denní i umělé světlo.
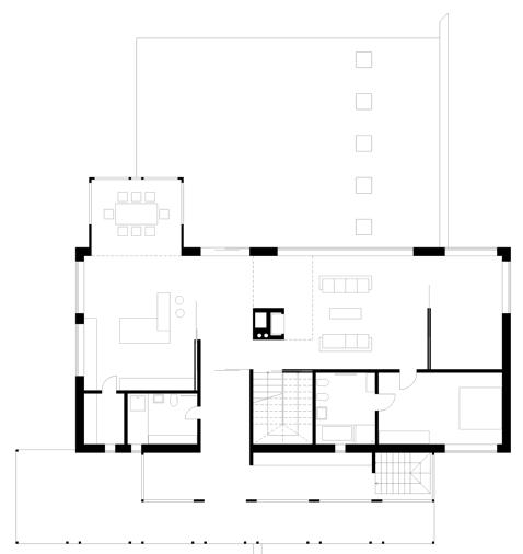
ÚDAJE O PROVOZU
Dispozice je navržena ve standardní logice užívání domu. Podzemní podlaží obsahuje zázemí domu, a to jak technické, tak rekreační (tělocvična, sauna, bazén). Přízemí, v části obytné, je prostorem relativně otevřeným, naproti tomu relativně uzavřeným územím je pokoj pro hosty. Jakýmsi pokračováním obývacího prostoru je venkovní terasa krytá pergolou. Patro je věnováno ložnicím rodičů a dětí, pracovně a hygienickému zázemí včetně šaten. Obě obytná podlaží jsou prostorově propojena vertikálou světlíku s galerií a tělesem komína krbu.
