2010Dům Mikulov - rekonstrukce
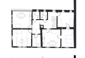
Zastavěná plocha: |
139 m2 |
Obestavěný prostor: |
1300 m3 |
Užitná plocha: |
325 m2 |
Místo
Hrázděný dům se nachází na urbanisticky dlouhodobě stabilizovaném místě v centru obce Mikulov . Datum výstavby současného tvaru domu se odhaduje dle stáří dřeva na rok 1729 (na nároží fasády je vyznačen rok 1767) je ale pravděpodobné, že základ domu je starší.
Zadání
V současnosti neobývaný a značně zchátralý, avšak krásný a zároveň
památkově chráněný, z hlediska charakteru místa nepostradatelný objekt je třeba znovu zprovoznit. Měl by sloužit pro přechodné a v budoucnu možná trvalé bydlení.
Koncept
Původní proporce domu a celá jeho struktura je dána, v jemných jednotlivostech na něm ale lze číst stopy jeho života v jednotlivých časových vrstvách. Připadá nám dobré v tomto vrstvení pokračovat a místy je zkultivovat do působivého příběhu (možná i mýtu). Právě dobové anomálie vytváří jedinečnost a bylo by škoda je puristicky odstranit.
Vrstvení je patrné zejména na vývoji oken od malých šestitabulkových, přes větší šestitabulkové kvůli kterým byl proveden zásah do hrázdění, dvojdílná čtyřtabulková, prvorepublikové proudnicově dělené okénko a dveře na wc, dále na tabulky nedělená dvojkřídlá okna vnější (vnitřní osmitabulková), poté bizarní „pásové okno“ v patře ve štítu a nakonec nedělené utilitární výplně z dob typizace v zadní fasádě. Náš návrh se pokuší tento vývoj interpretovat a zároveň přidává další současnou vrstvu.
Dalším typickým momentem je sdružování oken odrážející dispoziční řešení. Tento princip nastoluje řád.
V návrhu jsme ho využili pro kultivaci nahodilé zadní fasády. Nové rozměry otvorů reagují na dochovaná ostění a pokouší se do nich nezasáhnout, „analyticky“ je ponechat a pouze dozdít na potřebný rozměr s ohledem na princip dvojic.
Je k diskuzi, zda má být zadní fasáda ponechána bez omítky či omítkou sjednocena - „syntetizována“, památkáři (povinný dohled nad projektem i stavbou) se kloní spíše k omítání.
Vzhledem k tomu, že i v historii bylo hrázdění patra omítané, navrhujeme ho nabílit, zároveň tak dojde k silnějšímu scelení a abstrahování domu.
Konec minulého století reprezentují zjednodušené otvory v severní fasádě, současnou vrstvu zastupuje největší průsvitný otvor ve volném přepisu hrázdění u nároží. Tento prvek se objeví též v interiéru jako transparentní půdní vestavba.
Nika v hlavním průčelí byla historicky opatřena soškou, velmi pravděpodobné je, že šlo o sv. Barboru - patronku horníků (popř. o sv. Prokopa). Bude vhodné oslovit některého z lokálních umělců a téma nově uchopit.
