2014Rodinný dům Habrovice
Plocha pozemku: |
1502 m2 |
Plocha pozemku: |
1502 m2 |
Obestavěný prostor: |
700 m3 |
Užitná plocha: |
196 m2 |
Místo
Uliční typ původně zemědělské obce.
Síla a jistota založení, sousedství velkorysých hospodářských dvorů i zemědělství jsou tytam.
Blízké přírodní koupaliště, nedávno ještě hojně užívané, nyní za účasti lokálních úřadů neprůhledně zprivatizované a devastované, je přiléhavým vnějším obrazem současného vnitřního.
Nejistota, přešlapování na místě. Co teď?
Pozemek
Ačkoliv uvnitř obce, má stavebníkův pozemek výrazně specifickou atmosféru. Překročením hrany pozemku vstupujeme do země za zrcadlem, mdlý charakter okolí se náhle proměňuje. Jsou tu dva mohutné stromy na ose v čele zahrady, blízká měkká a otevřená krajina a vzdálené horizonty.
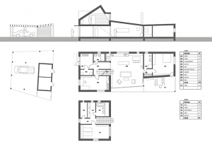
Dům
Návrhem jsme se pokusili vnést do otevřené plochy pozemku podrobnější hierarchii, logickou uvnitř i vně.
Na úzký vjezd umístěný v nepříznivé poloze stoupající levotočivé zatáčky přilehlé obecní komunikace, navazuje dlážděná plocha a dřevěný přístřešek - směrem do ulice otevřené parkovací stání a směrem do zahrady dřevník a sklad/kůlna.
Mezi kůlnou a domem vzniká malý kamenný dvorek. Dá se tu krom jiného docela příjemně sedět na zápraží v letním podvečerním slunci.
Samotný dům je svým výrazem směrem k ulici a obci konzervativní – považujeme to za nutné vyvážení fantazie seriálových novostaveb a rekonstrukcí v bezprostředním okolí.
Východním směrem se dům stává nízkým pavilonem prolínajícím prosklenou stěnou a krytou terasou se zahradou.
Za domem je založen malý ovocný sad.
ARCHIWEB
ARTHITECTURAL
