2013Rodinný dům Teplice
Plocha pozemku: |
494 m2 |
Užitná plocha: |
155 m2 |
Obestavěný prostor: |
700 m3 |
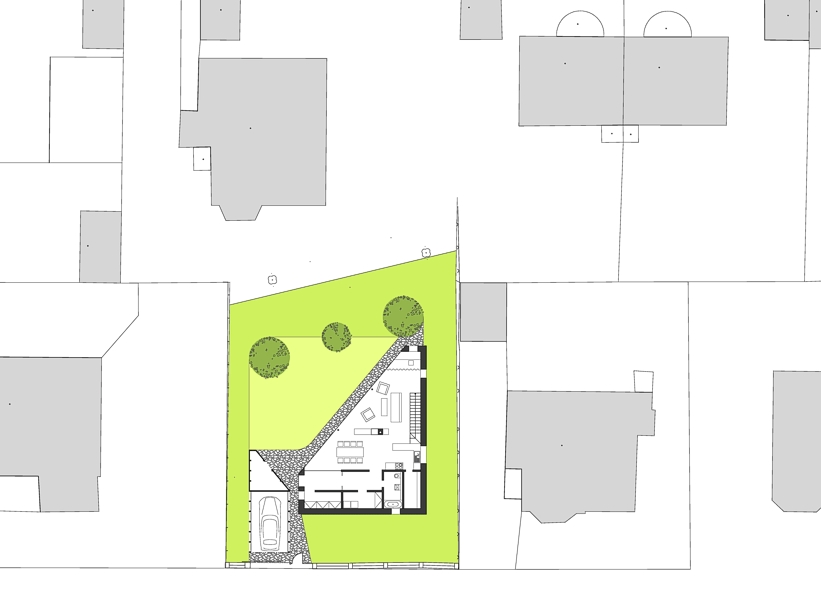
Drobná stavebníkova parcela tak trochu zbyla v pravoúhlém rastru místní zástavby.
Bezprostřední blízkost objemově velkorysých vil a domů z první poloviny 20. století psychologicky i fyzicky pevně vymezuje „manévrovací prostor“ návrhu.
Tělo domu je prostorovou artikulací limitů, předpokladů a přání.
Chtěli jsme vytvořit dům odpovídající měřítkem a výrazem jeho sousedům, zároveň ale tak, aby minimálně stínil severně orientovanou zahradu. Tu si představujeme jako důležitou součást denního, společenského přízemí domu a necháváme jí proto dostatečný prostor.
Pokušíme se nalézt optimální v minimálním.
