2010Rodinný dům Hanzlíčkova - dostavba
Dům
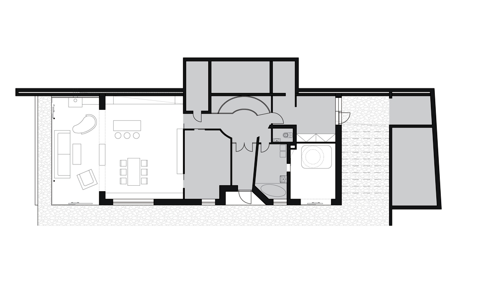
Na západní straně domu v místě původní verandy přistavujeme lehkou, prosklenou konstrukci. Ta navazuje na současný obytný prostor domu a podstatně jej zvětšuje. V domě tak zůstává prostor pro jídelnu s kuchyní, propojený s „obývacím pokojem“ situovaným do nové přístavby.
Na místě původního venkovního krbu je interiérový krb.
Původní obytná kuchyň tak získává prostor, více světla, lehkost a možná radost.
Bohužel se nepodařilo realizovat navrhovaný systém nábytku, který mohl tuto změnu vhodně doplnit a podpořit, ale třeba časem....
Nevyužitelná původní garáž byla rozdělena na dva prostory - do zahrady otočené prodloužení koupelny s vířivou vanou a opačně orientovanou šatnu.
Zahrada
V jihozápadním cípu pozemku jsme navrhli lehkou dřevěnou konstrukci, která slouží jako dřevník a strojovna pro bazén. V protějším rohu zahrady u vstupu je použita podobná konstrukce fungující jako kryté parkovací stání pro dva automobily.
autor původního domu Jan Jehlík "http://www.janjehlik.cz/"
