2014JACER - školící středisko
Plocha pozemku: |
6066 m2 |
Užitná plocha : |
892 m2 |
Obestavěný prostor : |
3500 m3 |
širší vztahy
Původně zemědělská usedlost, velkoryse založená v druhé polovině devatenáctého století v Předlicích na okraji Ústí nad Labem.
Za minulého režimu tu hospodařil státní statek, který areál využíval nejspíš naprosto pragmaticky. Udržovalo se pouze to co se bezprostředně hodilo, zbytek chátral. Od devadesátých let bylo místo opuštěné a následoval rychlý rozklad.
Přes pokročilou devastaci tu ale stále byla a je zřetelná síla koncepce a provedení původního založení.
Měřítko areálu je řádově větší než měřítko okolní zástavby (rodinné, nebo činžovní domy a drobné provozovny).
Výrazné objekty po obvodě pozemku artikulují měřítko a prostor rozsáhlého dvora. Dva z nich - padesát metrů dlouhá konírna na západě a šedesát dva metrů dlouhá stodola na jižní hraně pozemku - jsou základními kameny našeho návrhu.
architektura
Investor měl zpracovánu jakousi ideovou studii využití areálu, která s původními domy příliš nepočítala. Nám ale připadalo lepší, sledovat zkušenost a myšlení původních stavitelů. Torzo stodoly na jižní hraně pozemku v sobě mělo potenciál a kouzlo, které bylo škoda nevyužít a nový dům jsme proto umístili sem. Kamenná obvodová zeď navíc svojí velikostí a proporcí překvapivě dobře funguje pro dispozici a provoz nového domu. Ve chvíli kdy jsme zjistili, že původní zdi a otvory ladí téměř s centimetrovou přesností s modulaci dřevostavby (se dřevem jako stavebním materiálem se od počátku automaticky počítalo), zkonstruoval se dům vlastně sám. Areál se tak zároveň vrátil ke svému původnímu výraznému tvaru jasně definovaného dvora.
Na obou kratších koncích jsme prolomili původní kamenný obvod (půdorys 62x10m) a symbolicky tak propojili skrz dům dvůr s rozsáhlým pozemkem na jihu (měly by tu vyrůst ještě další objekty a odehrávat se další aktivity).
Dlouhé boční kamenné zdí využíváme naopak jako přirozené opěrky (výrazný terénní zlom) a zároveň stabilní a pevné fasády nového domu. Původní vjezdy do stodoly nám dobře zapadají do dispozic přízemí jako hlavní vstupy a velká okna.
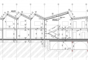
Střešní rovina je pilou šedových světlíků. Jejich velikost a směřování váže pevně k dispozici druhého podlaží. Na východ orientované světlíky stejné velikosti prosvětlují jednotlivé učebny a západně orientované prosklení osvětluje komunikační prostor a velkou jednací místnost.
Střecha svým tvarem odkazuje k industriální atmosféře městské periferie (v blízkém okolí používaný typus) a zároveň přináší nevšední světelnou kvalitu do celého horního patra domu. S nadsázkou je střecha také zubatým plátem pily, typického nástroje JACERu.
ČESKÁ ARCHITEKTURA 2013-2014
DEZEEN
ARCH DAILY
A10
METALOCUS
ARCHIWEB
ILIKEARCHITECTURE
epiteszforum.hu
