2025Rodinný dům Pokratice
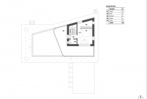
Zastavěná plocha : |
210 m2 |
Užitná plocha : |
160 m2 |
Obestavěný prostor : |
560 m3 |
místo
Jižně orientovaná stráň s široce otevřeným výhledem přes Litoměřice daleko do vnitrozemí.
Ještě donedávna ovocnářsky kultivovaná krajina, v současnosti téměř beze zbytku vytěžená chaotickou parcelací a zatížená většinou zakrněle předimenzovanými (myšlenka vs. objem) stavbami rodinných domů.
cíl
Formu domu pro tříčlennou rodinu tak hledáme spíš uvnitř, než vně. Přizpůsobujeme se terénní konfiguraci a hledáme logické napojení domu na komunikaci a nejbližšího souseda.
Hlavní denní děje v domě jsou soustředěny v přízemí. V patře je ložnice se střešní terasou. Výrazná betonová konzola lemující dům je přístřeškem nad domovními vstupy, sluneční clonou a zastřešením terasy navazující na obytný prostor.
